- BUILDING PLOT FOR SALE
- FULLY PERMITTED SITE
- PLANNING REFERENCE 24/01225/FUL
- 3 BED DETACHED HOUSE
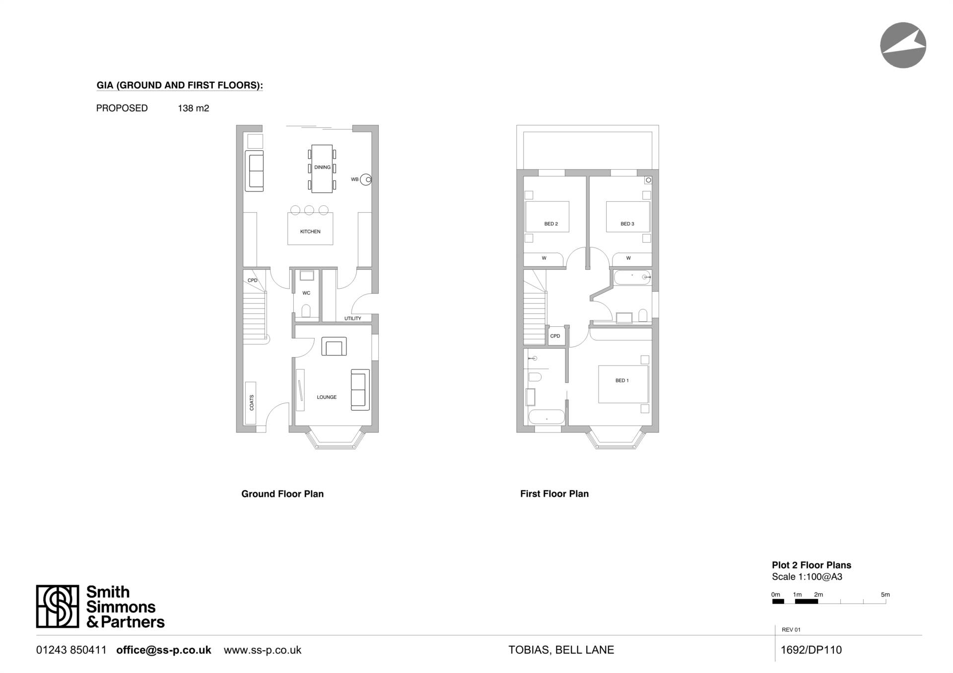
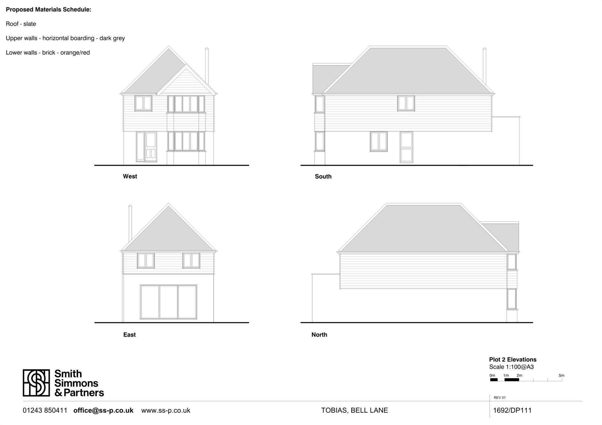
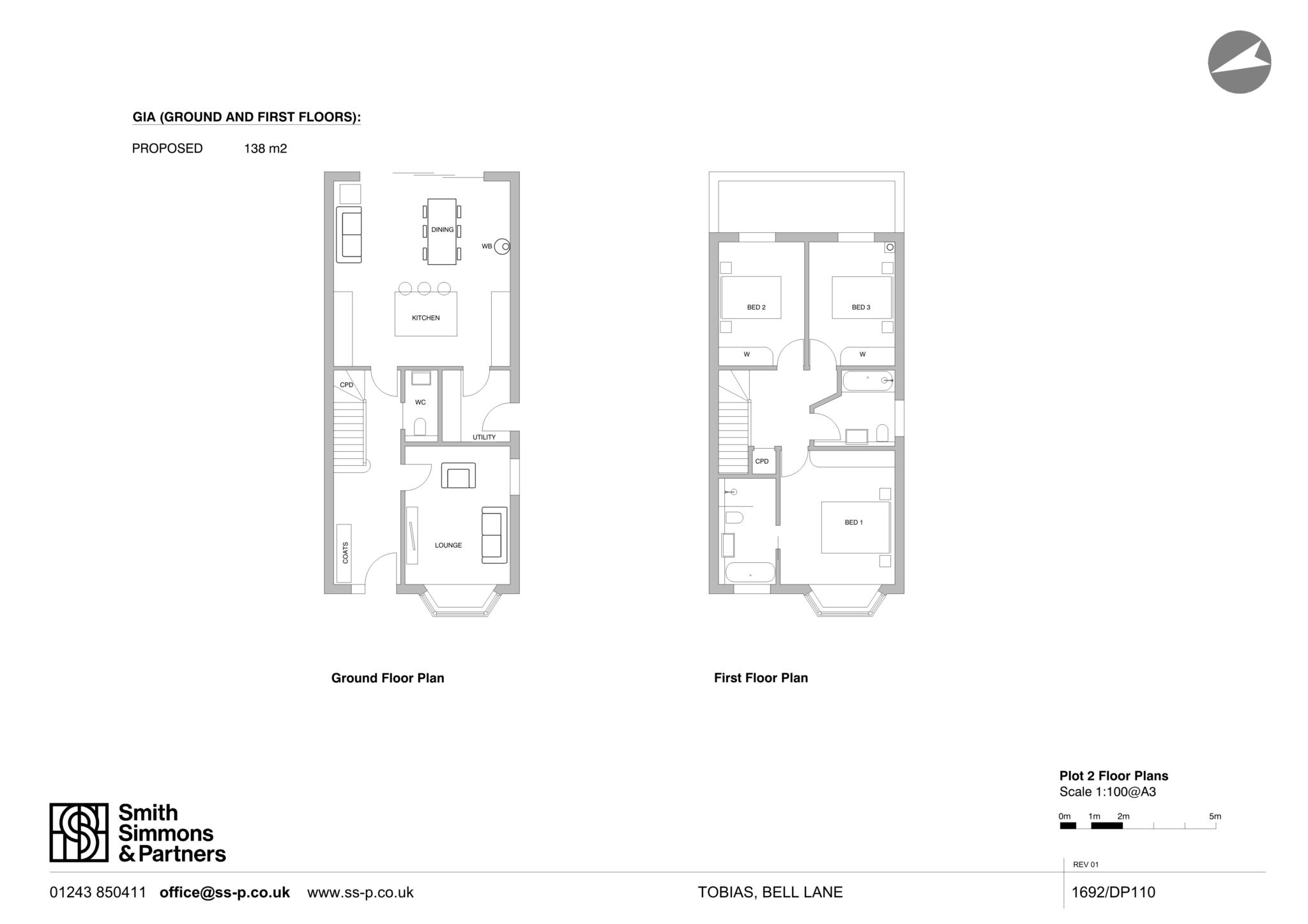
Approved Planning for a Detached Dwelling (138 sqm). Planning reference: 24/01225/FUL
A rare opportunity to acquire a building plot with full planning permission for the construction of a well-proportioned detached family home in the highly regarded coastal village of Birdham.
The approved scheme allows for a two-storey detached house extending to approximately 138 sq m (1,485 sq ft), providing generous accommodation well suited to modern family living. The design offers a balanced layout with scope for open-plan living spaces, good bedroom sizes, and private garden areas.
Planning permission has been granted offering certainty and removing the delays and risks typically associated with the planning process.
The plot benefits from a newly approved access and sits within an established residential setting. Birdham village centre, local amenities, and the surrounding harbour villages are all easily accessible.
Key features:
• Full planning permission granted
• Detached house of approx. 138 sq m
• Sought-after Birdham location
• Approved access and associated works
• Ideal opportunity for a self-builder or small developer
• Freehold
Further details, plans, and decision notice are available on request.
Site inspections must be accompanied al all times.
CIL Liability.
LOCATION
The property is located within the village of Birdham which is designated an area of outstanding natural beauty and is a short stroll from the fantastic facilities of the Birdham Pool Marina. The Village Hall is host to weekly and monthly social events including carpet bowls, bingo and performing arts sessions, further local amenities include a 'Nisa' local supermarket and a soon to be completed Waitrose mini store. Further facilities including a primary school, convenience store and petrol station are within walking distance. East Wittering village centre is within a short drive and offers a comprehensive range of amenities including a primary school, doctors' surgery, chemist, dentist and a wide selection of quality independent shops and mini supermarkets. Furthermore, the historic city of Chichester, some 5 miles away offers various high street outlets and eateries.
Services
Available in adjacent road.
Business Rates
West Sussex County Council, To Be Confirmed
Notice
Disclaimer Notice: Astons of Sussex for themselves and the VENDORS or Lessors of this property, whose agents they are, give notice that 1) these particulars are produced in good faith, are set out as a guide only and do not constitute any part of a contract. 2) No person in the employment of Astons of Sussex has any authority to make or give representation or warranty in respect of this property, 3) Any prospective purchaser or tenant must independently verify the accuracy of each statement through inspection, professional survey, or other means of due diligence. 4) Photographs may include lifestyle shots and local views. There may also be photographs including chattels not included in the sale of the property. 5) Measurements, maps and illustrations given are approximate and should not be relied upon and are for guidance only. 6) The services, system and appliances have not been tested and no guarantee as to their operability or efficiency can be given by Astons of Sussex Ltd. 7) The statements contained within these particulars shall not be construed as representations of fact or relied upon as such. 8) Any information regarding the tenure and charges for the property has been supplied by the seller and is subject to change. All leasehold information will be formally confirmed by the seller`s solicitor during the conveyancing process.
| Utility |
Supply Type |
| Electric |
Unknown |
| Gas |
Unknown |
| Water |
Unknown |
| Sewerage |
Unknown |
| Broadband |
Unknown |
| Telephone |
Unknown |
| Other Items |
Description |
| Heating |
Not Specified |
| Garden/Outside Space |
No |
| Parking |
No |
| Garage |
No |
| Broadband Coverage |
Highest Available Download Speed |
Highest Available Upload Speed |
| Standard |
20 Mbps |
1 Mbps |
| Superfast |
80 Mbps |
20 Mbps |
| Ultrafast |
Not Available |
Not Available |
| Mobile Coverage |
Indoor Voice |
Indoor Data |
Outdoor Voice |
Outdoor Data |
| EE |
No Signal |
No Signal |
Enhanced |
Enhanced |
| Three |
Likely |
Likely |
Enhanced |
Enhanced |
| O2 |
Likely |
Likely |
Enhanced |
Enhanced |
| Vodafone |
Likely |
Likely |
Enhanced |
Enhanced |
Broadband and Mobile coverage information supplied by Ofcom.